Search

Leave a Message

Thank you for your message. We will be in touch with you shortly.

Explore Our Properties

Property Description

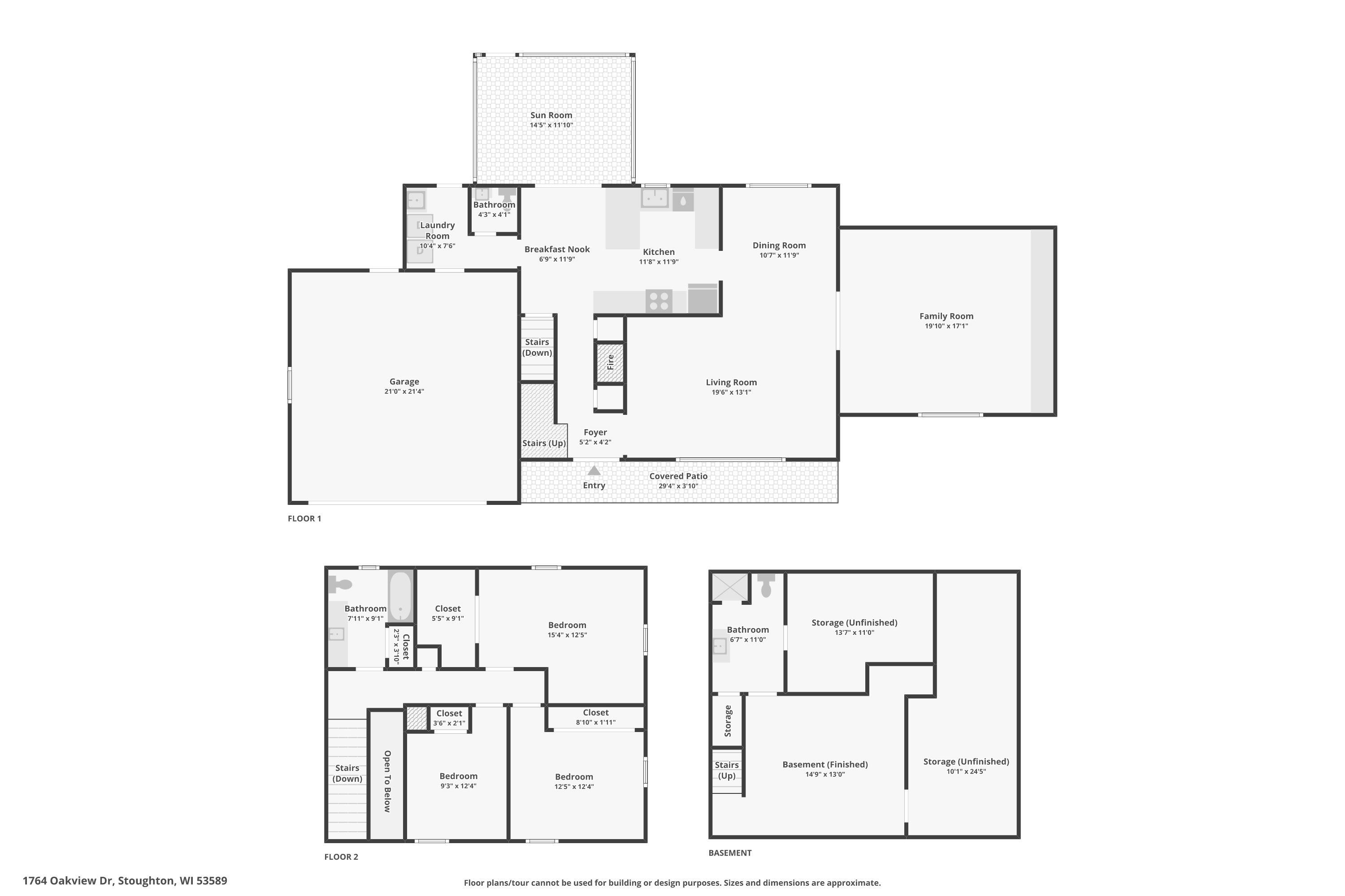
Country serenity just minutes from city convenience! This move-in ready home sits on a peaceful 1/2-acre lot in a prime location close to shopping, dining, parks, and commuter routes. Remodeled kitchen with new countertops, backsplash, painted cabinets & newer appliances (2025) opens to the sunroom, deck & brand-new patio. Partially fenced yard with freshly graded & seeded lawn offers great space to relax, play, or garden. Main level features laminate flooring (2022), a cozy wood-burning fireplace, open dining area, bright flex room with new skylights & main-floor laundry (2024). Upstairs includes new carpet (2023), spacious bedrooms & an oversized primary suite with walk-in closet. Finished lower level adds valuable living space with updated bath (2024). Major updates: roof, windows, water heater, pressure tank, radon system, gutters & garage door opener. Enjoy a quiet country feel with quick access to everything the surrounding areas have to offer!

Overview

Open House
2/22/2026 11:00AM - 1:00PM CST
Property Status
For Sale
Lot Size
0.54 Acres
MLS ID
2016918
Property Type
Residential
Year Built
1972

Features & Amenities

Neighborhood
Stoughton
Architecture Styles
Colonial
Garage Spaces
2.0
Utilites
Cable Available
Parking
Garage Door Opener, Attached
Heat Type
Forced Air
Air Conditioning
Central Air
Fireplace
Wood Burning
Appliances
Dryer, Washer, Refrigerator, Dishwasher, Disposal, Range, Oven, Water Softener Owned
Other Interior Features
Walk-In Closet(s), Vaulted Ceiling(s), Pantry
Elementary School
Kegonsa
Middle School
River Bluff
High School
Stoughton
School District
Stoughton
Sales Price
$465,000
Real Estate Tax
$5,054/yr

Downloads

1764 Oakview Drive

Schedule a Tour

We would love to help you see this beautiful home! As a full-service brokerage, we can help you tour. Please submit an offer, and answer questions about the buying process.

Thank you

for your interest in 1764 Oakview Drive, Stoughton, WI 53589

1764 Oakview Drive
Navigate
1764 Oakview Drive
explore in 3d
Stoughton

Explore Stoughton

During this time there are many different events for residents to participate in, along with two different parades.

read more

Mortgage Calculator

Estimate your monthly mortgage payment, including the principal and interest, property taxes, and HOA. Adjust the values to generate a more accurate rate.
$0,000 Your Payment 20 15 65
$0,000 Your Payment

I'm Interested In

1764 Oakview Drive

or Contact

pretitle

Featured Properties

  • 2109 Korgen Drive For Sale

    $699,900

    2109 Korgen Drive, Stoughton, WI 53589

    • 4 Beds
    • 3 Baths
    • 3,032 Sq.Ft.
  • 608 Telemark Trail Pending

    $499,900

    608 Telemark Trail, Stoughton, WI 53589

    • 4 Beds
    • 2.5 Baths
    • 2,620 Sq.Ft.
View All Properties